Listing provided courtesy of: Keller Williams DTC. [email protected] P: (303) 771-7500
1885 S Quebec Way Unit: K101
Denver, CO 80231-
Est. Payment/ mo
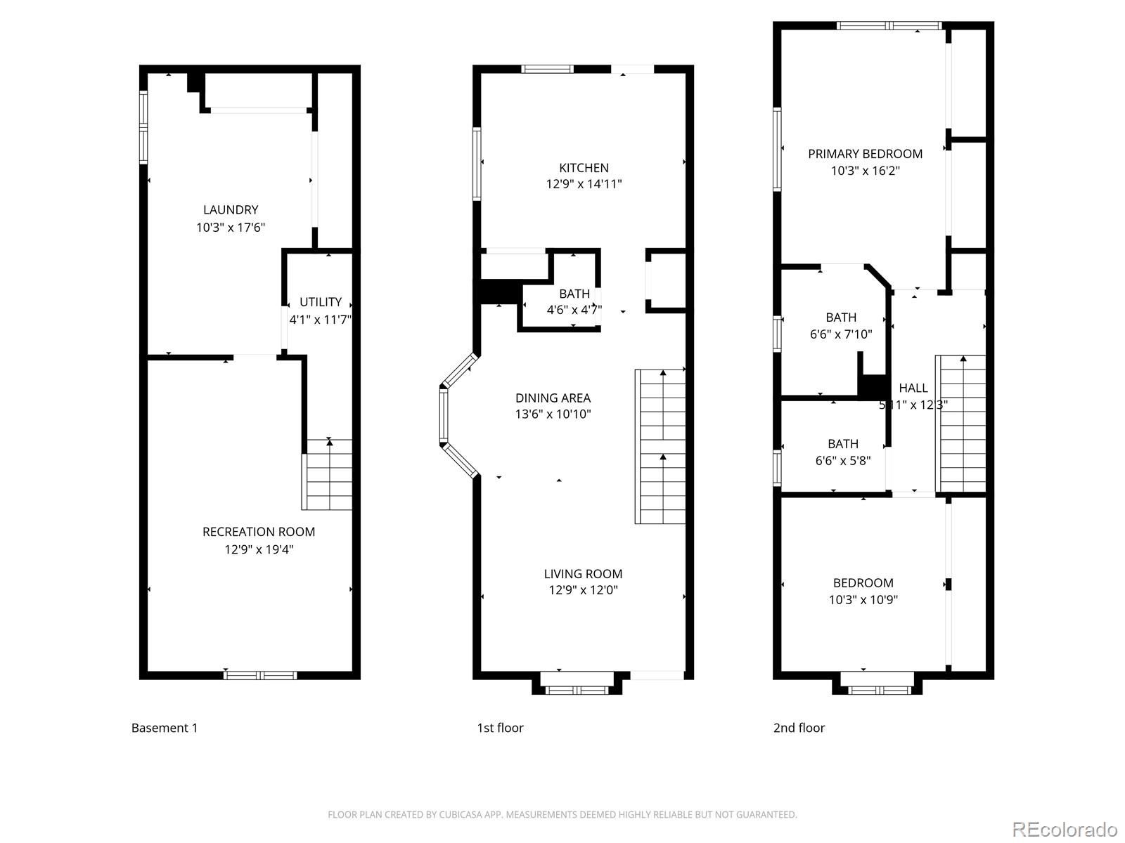
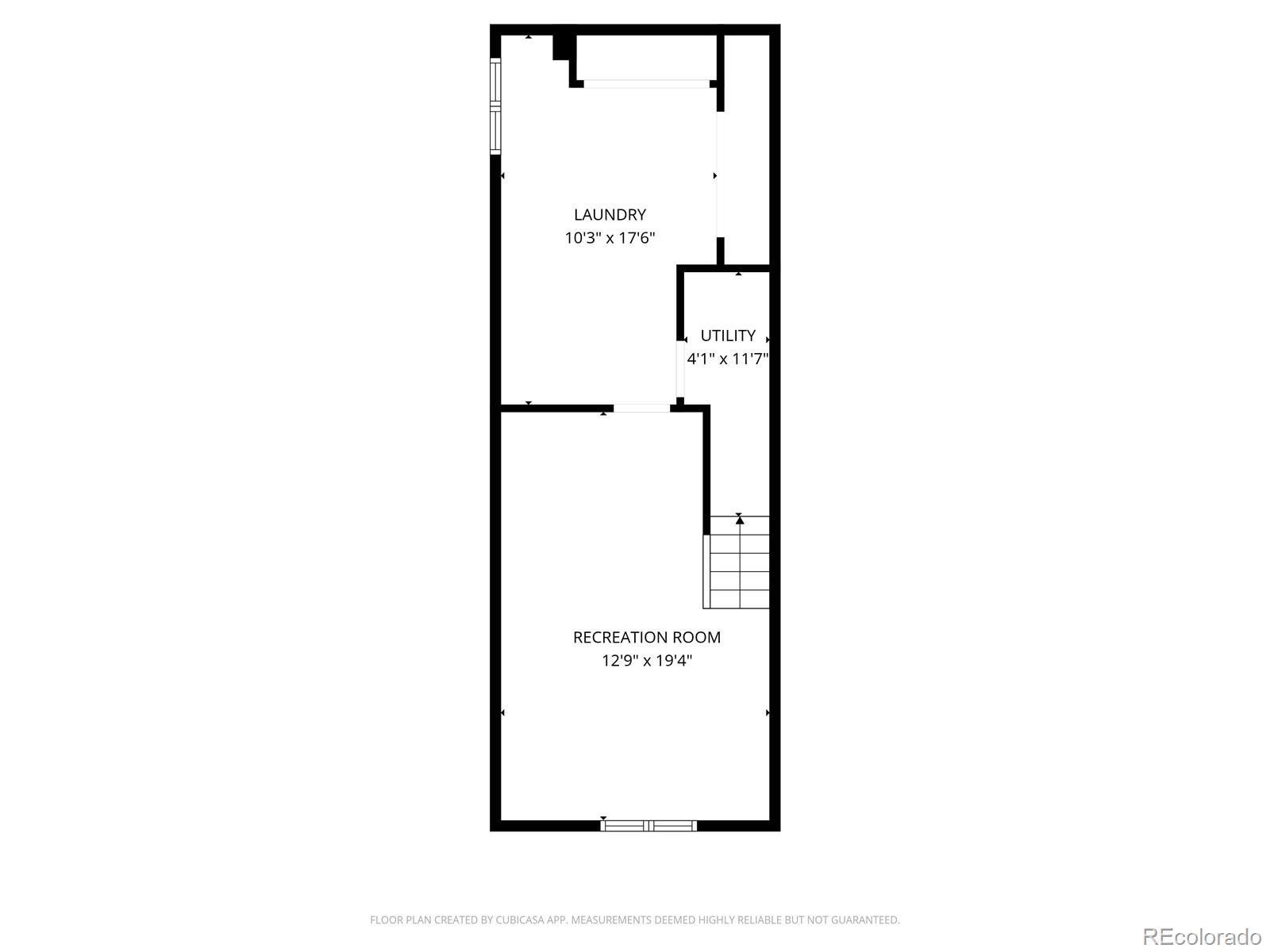
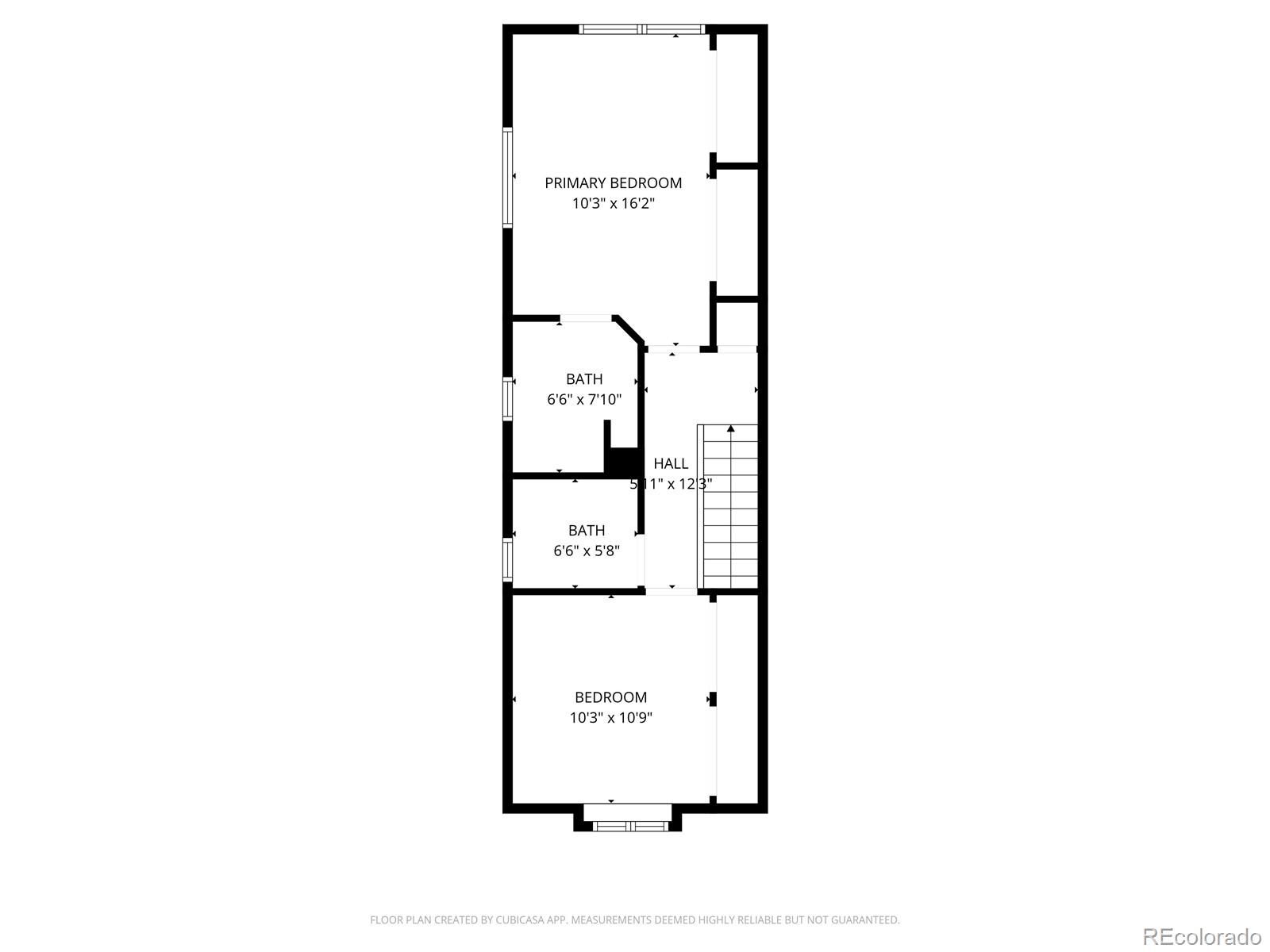
This thoughtfully designed townhome offers a functional floor plan, modern updates, and access to outdoor amenities that make everyday living easy and enjoyable. The main level features an open living room and a kitchen equipped with stainless steel appliances and abundant cabinet storage. A dedicated dining area is also located on the main level, along with a convenient half bathroom. Vinyl wood flooring runs throughout the main level, upper level, and finished basement, creating a cohesive and low-maintenance living environment. Upstairs, the primary bedroom includes a full bathroom and two closets, providing both privacy and generous storage. An additional bedroom and bathroom are also located on this level. The finished basement expands the living space with a spacious family room, ideal for movie nights, a home office, or a workout area. The laundry room is located in the basement and includes a utility sink for added convenience. The HOA provides extensive coverage including water, sewer, trash, snow removal, insurance, road maintenance, and exterior and grounds maintenance, supporting a truly low-maintenance lifestyle. Residents also enjoy access to a community pool and playground. Parking is convenient with a detached carport plus an additional reserved uncovered space. Situated near the Cherry Creek Trail and the High Line Canal, this townhome offers quick access to walking and biking paths, outdoor recreation, and nearby everyday conveniences. A great opportunity for comfortable living with thoughtful features throughout! Welcome HOME!
PROPERTY DETAILS
- Price $325,000
- Price / Sq Ft $194
- Beds 2
- Baths 3
- Bldg/Unit Size (Sq Ft) 1,677
- Land/Lot Size (Sq Ft) 1,742
- Property Type Residential
- Year Built 1995
- MLS Number 9844154
TAXES & HOA
- Annual Taxes (USD) $1,689
DISCLAIMERS, ANCILLARY INFO, DISCLOSURES & OTHER LEGAL STUFF
The content relating to real estate for sale in this Web site comes in part from the Internet Data eXchange (“IDX”) program of METROLIST, INC., DBA RECOLORADO® . Real estate listings held by brokers other than Keller Williams Realty DTC are marked with the IDX Logo. This information is being provided for the consumers’ personal, non-commercial use and may not be used for any other purpose. All information subject to change and should be independently verified. Data last updated: 03/09/2026 15:09:30
- This publication is designed to provide information regarding the subject matter covered. It is displayed with the understanding that the publisher and authors are not engaged in rendering real estate, legal, accounting, tax, or other professional services and that the publisher and authors are not offering such advice in this publication. If real estate, legal, or other expert assistance is required, the services of a competent, professional person should be sought.
- The information contained in this publication is subject to change without notice. METROLIST, INC., DBA RECOLORADO MAKES NO WARRANTY OF ANY KIND WITH REGARD TO THIS MATERIAL, INCLUDING, BUT NOT LIMITED TO, THE IMPLIED WARRANTIES OF MERCHANTABILITY AND FITNESS FOR A PARTICULAR PURPOSE. METROLIST, INC., DBA RECOLORADO SHALL NOT BE LIABLE FOR ERRORS CONTAINED HEREIN OR FOR ANY DAMAGES IN CONNECTION WITH THE FURNISHING, PERFORMANCE, OR USE OF THIS MATERIAL.
- PUBLISHER’S NOTICE:
All real estate advertised herein is subject to the Federal Fair Housing Act and the Colorado Fair Housing Act, which Acts make it illegal to make or publish any advertisement that indicates any preference, limitation, or discrimination based on race, color, religion, sex, handicap, familial status, or national origin. - METROLIST, INC., DBA RECOLORADO will not knowingly accept any advertising for real estate that is in violation of the law. All persons are hereby informed that all dwellings advertised are available on an equal opportunity basis.

- © 2021 METROLIST, INC., DBA RECOLORADO® – All Rights Reserved
6455 S. Yosemite St., Suite 300
Greenwood Village, CO 80111 USA - ALL RIGHTS RESERVED WORLDWIDE. No part of this publication may be reproduced, adapted, translated, stored in a retrieval system or transmitted in any form or by any means, electronic, mechanical, photocopying, recording, or otherwise, without the prior written permission of the publisher. The information contained herein including but not limited to all text, photographs, digital images, virtual tours, may be seeded and monitored for protection and tracking.
By submitting information, I am providing my express written consent to be contacted by representatives of this website through a live agent, artificial or prerecorded voice, and automated SMS text at my residential or cellular number, dialed manually or by autodialer, by email, and mail.